Body
Doté d’une salle de réception et d’une salle de réunion en rez-de-chaussée, l’Espace Meeting Péreire dispose également d’un amphithéâtre de 62 places assises.
Body
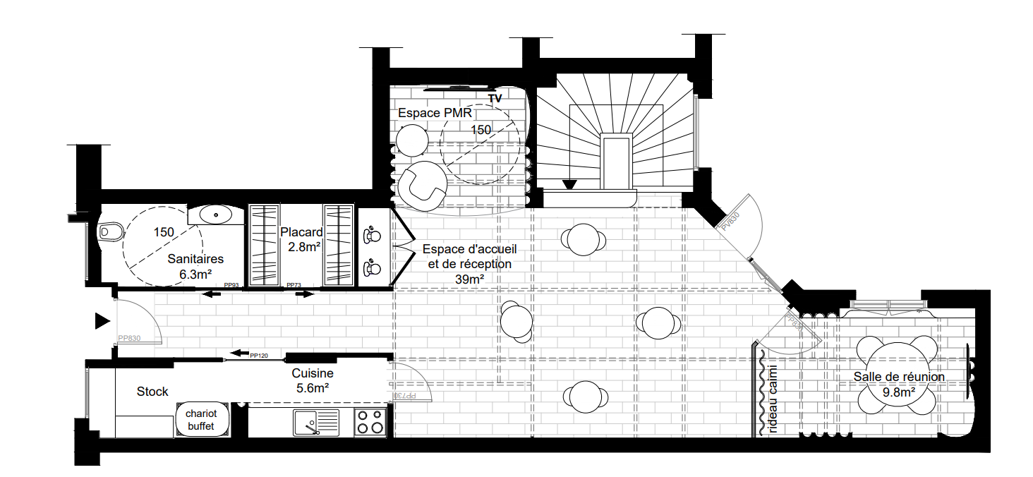
Rez-de-Chaussée
Réception - Salle de réunion - Espace PMR - Vestiaire - Cuisine
Réception
- 4 Tables rondes
- Vestiaire / Bagagerie
- Cuisine équipée : Lave vaisselle / 2 Micro-ondes / 2 Réfrigérateurs / Passe-plats
- Machine à café Nespresso
Salle de réunion
- Ecran tactile et collaboratif - Clickshare
- Système de livestreaming adapté pour les visioconférences
Espace PMR
- Situé au Rez-de-Chaussée
- Retransmission de l'Amphithéâtre
- Sanitaires



